Трехкомнатная квартира в новостройке 82,90 м2 по ул. Парковая 2 за 16754000 руб.

Адрес
Адрес Парковая, 2
Описание
Цена 16 754 000 р. (202 099 р./м2)
Подать заявку на ипотеку
Количество комнат Трехкомнатная
Этаж 3
Этажность дома 25
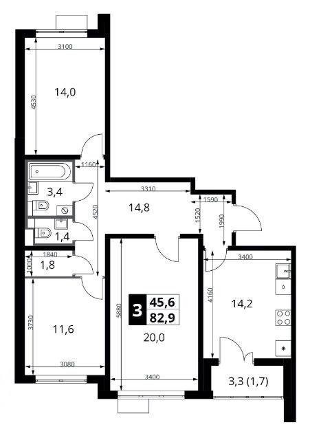
Общая S, м2 82,90
Жилая S, м2 0,00
S кухни, м2 0,00
СКИДKА ❗ 💰 Рассрочка, все виды льготной ипотеки, сертификаты. 🏠 Жилой комплекс «Южная Битца» - современный проект класса комфорт плюс, расположенный в 3 км от Москвы между Варшавским и Симферопольским шоссе. «Южная Битца» — это район, где созданы все условия и необходимая инфраструктура для комфортного проживания и отдыха всей семьи. ✅ ОТДЕЛКА - предчистовая • Полностью выполнены черновые работы. • В квартире возведены все стены. • Все поверхности готовы к укладке чистовых отделочных материалов. • Внутренние стены готовы для финишного покрытия, пол и потолок не требуют выравнивания. • Выполнена разводка электрики, установлены розетки и выключатели. • В санузлах полностью выполнена отделка, уложена керамическая плитка и установлены ванна, умывальник, смесители, унитаз, полотенцесушитель. • Входная металлическая дверь с заменяемой внутренней панелью. Возможен вариант с чистовой отделкой • Входная металлическая дверь с декоративной внутренней панелью в цвет межкомнатных дверей, межкомнатные двери. • В санузлах выполнена укладка напольного покрытия — керамогранита, стены облицованы керамической плиткой. Установлены ванна, умывальник, смесители, унитаз, полотенцесушитель. • На кухне и в коридоре выполнена укладка плиткой, в комнатах уложен ламинат, поклеены обои, установлены плинтусы. В качестве материала отделки пола также используется кварцвинил. • Выполнена разводка электрики, установлены электрощиток, выключатели, розетки, точечные светильники (санузел, коридор). • Выполнен монтаж натяжного потолка во всех помещениях, за исключением лоджии ✅ ИНФРАСТРУКТУРА Внутренняя инфраструктура ЖК «Южная Битца» будет включать четыре детских сада (государственных и частных), две школы, собственную поликлинику, а также супермаркеты, кафе, пекарни, аптеки и другие предприятия сферы услуг на первых этажах. Для жителей района «Южная Битца» доступна развитая инфраструктура ближайших московских районов Чертаново, Южное, Бирюлево Западное, Северное Бутово и Южное Бутово, где работают множество образовательных и медицинских учреждений, торгово-развлекательные центры, кафе, рестораны, спорткомплексы, кинотеатры, парки. В 2,5 км от комплекса находится гипермаркет «Леруа Мерлен», в 3,2 км — ТРЦ «Шелковый путь», в 11 км — ТРЦ «Мега Теплый стан». Недалеко работают ещё несколько крупных торговых центров, а также супермаркеты «Магнит», «Дикси», «Пятерочка», «Ярче!» и магазин «МясновЪ». Примерно десять минут на транспорте займет дорога до бассейна «Олимп» и спортивного клуба «Спорт вариант». Территория района включает в себя зеленые участки и променады, площадки для игр и спокойного отдыха, а также зоны для спорта на свежем воздухе. • Зеленая территория с элементами ландшафтного дизайна • Сеть пешеходных, беговых и велодорожек • Зоны воркаута, спортивные площадки с уличными тренажерами • Рельефные детские площадки • Площадка для выгула собак Подземный и наземный паркинги, кладовые помещения Дворы без машин, благоустроенные зоны для отдыха и прогулок Оборудованные детские и спортивные площадки Лесопарковая зона Подольского лесничества и Бутовский лесопарк в двух шагах от дома ✅ РАСПОЛОЖЕНИЕ Комплекс расположен в 3 км от МКАД между Варшавским и Симферопольским шоссе. С южной стороны к комплексу примыкает Подольское лесничество, рядом находится Бутовский лесопарк, а с западной стороны — район Москвы Северное Бутово и ботанический сад «Вилар». Также осуществляется активное строительство новой автомагистрали Солнцево — Бутово — Варшавское шоссе в рамках реализации Юго-Восточной хорды. Она обеспечит поперечную связь между районами и станет полноценным дублером МКАД на юго-западе столицы. ЛИЧНЫМ АВТОМОБИЛЕМ • По Варшавскому шоссе 3 км до МКАД ОБЩЕСТВЕННЫМ ТРАНСПОРТОМ • 10–15 мин. на маршрутном такси до станций метро «Аннино», «Бульвар Дмитрия Донского» и «Улица Старокачаловская» НАЗЕМНОЕ МЕТРО МЦД-2 • 10–15 мин. на маршрутном такси до ж/д станции Бутово, которая является остановочным пунктом на маршруте Московского центрального диаметра № 2 «Курско-Рижский» • ГК ФСК прорабатывает возможность и проектирует размещение остановочного пункта МЦД-2 вблизи жилого района «Южная Битца» в районе 9 корпуса ✅ ПОКУПАТЕЛЮ: - Бесплатное сопровождение сделки; - Любая форма расчета (рассрочка, семейная и военная ипотека, сертификаты); - Выгодный тариф на страхование; - Гарантия юридической чистоты сделки -214ФЗ; РАБОТАЕМ ДЛЯ ВАС С ЗАБОТОЙ И БЕЗ КОМИССИИ! id: 32190
Квартира в новостройке в Санкт-Петербурге
Дата 01.07.2025 23:18:24
Объявление № 22715120
Дата подачи:
2 июля 2025 г. 3:18
Дата обновления:
2 июля 2025 г. 3:18
Просмотров 22 Хотите продать быстрее?

Продавец
Агентство недвижимости:
Андреева Ирина Сергеевна
email: 89225397055avega@gmail.co m
Показать номер телефона
Пожаловаться
Комментарии:
Добавить